Прием звонков: Пн-Пт: с 8.00 до 21.00
Сб,Вс: с 9.00 до 18.00
(Бесплатный звонок по России)
Ваш Регион: Саратовская область
Ваш город: Александров Гай
Изменить город:

ГлавнаяПроекты готовых решенийМодульные здания → Трехэтажное общежитие из 36 БК на 100 человек

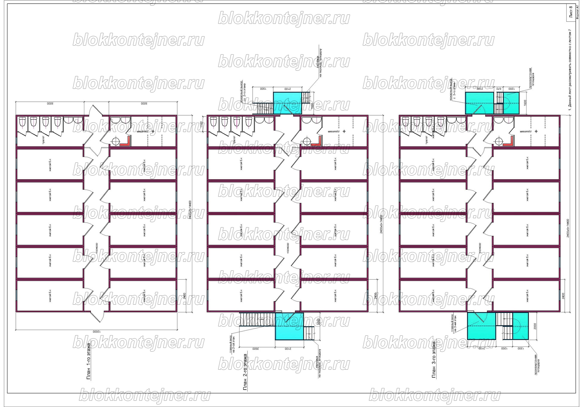
Трехэтажное общежитие из 36 БК на 100 человек

Трехэтажное общежитие из 36 БК на 100 человек
Трехэтажное общежитие из 36 БК на 100 человек

Трехэтажное общежитие из 36 БК на 100 человек

Для того, чтобы узнать стоимость проекта, заполните форму ниже:

Узнать стоимость этого проекта

ОШИБКА:
Заполните, пожалуйста, все поля корректно!
Спасибо!
Ваш запрос отправлен, через некоторое время с Вами свяжутся!
Представтесь(ФИО)*:

Телефон*:

Город доставки*:

E-mail*:


Нажимая на кнопку, вы даете согласие на обработку персональных данных
* - поле обязательно для заполнения.
Назад